外墻干掛中的石材板材開槽規范
1、短槽位置的設計短槽的寬度宜設計為6-7mm,短槽開口的槽口應設計成45度角,短槽所開槽的深度應滿足所選用的金屬關鍵的插入深度規格要求。為了滿足充分安裝金屬掛件的要求,一般短槽的深度要比金屬掛件的理論深度再深3-5mm,滿足金屬掛件的配套安裝需求。
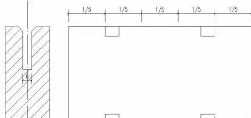
石材短槽的設計除了和板塊的厚度位置有關系外,還應該注意短槽與石材邊的距離,一般短槽的外側與石材板塊邊緣的距離不小于3倍的石材厚度且不應小于85mm,也不應大于180mm。(施工中還有一種特殊情況,假如板材是橫向的且寬度大于600mm時,短槽的外側距離板材邊緣應在1/5處比較適宜)

2、背栓式石材安裝孔的設計要設計好背栓在石材上的打孔位置,首先要確定所選用的背栓的直徑、打孔要求、打孔深度,而且滿足背栓的安裝技術要求,由于石材在加工后厚度會有一定的偏差,因此一般狀態下石材的打孔德開始設置深度要比背栓的插入理論深度再加深3-5mm,以滿足背栓的實際安裝需要。
關于在石材板塊背部的打孔位置與板塊邊緣的距離同短槽開槽位置應保持一致。
客服熱線:











