1、石材拼縫處現黑縫
◆通病現象

石材工藝縫處,視線可見黑縫
◆原因分析
1、圖紙深化不到位,項目部對班組技術交底不清楚;
2、工人操作忽視細節,工藝縫拼接顛倒。

◆預防措施
(如正確圖片所示)深化設計時考慮拼縫與視線關系,在視線上方的工藝縫采用“節點A”,反之,視線下方的工藝縫采用“節點B”。
2、石材爆邊
◆通病現象

石材墻面平接拼縫處平整度差,
石材切割邊存在暴邊現象
◆原因分析
1、前期未對石材的性質作分析,未提供解決石材缺陷的施工工藝;
2、加工、運輸、安裝等環節導致爆邊。

◆預防措施
1、石材進場時嚴格檢查,劣質和有損壞的石材嚴禁入場;
2、石材拼縫在深化設計階段就建議留V形縫,避免密拼方案;
3、安排廠家對石材正面進行倒v字形倒斜邊,石材反面進行內襯背條,板面倒V字形角避免高低不平,內襯背條安裝切割 ;
4、安裝石材平接拼縫時,對施工人員做好交底工作。如出現爆邊現象,可采用同色云石膠進行修補。
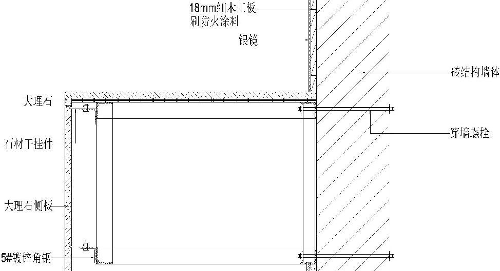
3、懸挑石材基架安裝錯誤
◆通病現象

懸挑石材臺面內部基架與墻面出現松動變形現象
◆原因分析
1、墻基礎松動,安裝基架后不檢查驗收就進行下道工序;
2、沒有用角鐵做基架,或鐵架安裝固定時受力點不合理造成松動變形。

◆預防措施
1、出現墻基礎松動一般是空心磚,加氣磚墻面,施工前一定要組織落實防患措施,必須做好工序驗收交接工作,并且要有書面記錄;
2、這種懸挑式臺面內部一定要用鋼架支撐固定,定位要注意受力點,可采用穿墻螺栓對鋼架進行固定(如正確節點圖所示)。
4、陰角處理不當
◆通病現象

石材(或墻磚)在拼接處出現小黑洞
◆原因分析
1、前期策劃未到位,加工圖紙未做45度拼接或搭接處理;
2、未及時修補到位。

◆預防措施
1、前期策劃應考慮拼接角度,圖紙深化下單時應考慮到位(內切45度左右),陰角采用搭接式,也可保證通縫。(如下圖所示)
2、材料進場收貨時嚴把質量關,施工過程中要求工人輕拿輕放。

5、透光云石現陰影
◆通病現象

透光云石或其它透光材料安裝后
鋼架或掛點部位陰影明顯
◆原因分析
1、前期策劃及圖紙深化不到位;
2、透光云石未做透光度試驗。

◆預防措施
1、重點部位須做大樣確定具體施工做法,以保證透光造型的最終裝飾效果。
2、透光造型處做法須考慮:透光材料的透明度、是否有漏光;燈光的照度、基層材料的泛光效果、燈具密度、與透光飾面材料的距離、燈具的檢修難易程度、防火要求;背后支撐骨架(鋼架或其它材料)、掛點處的陰影對透光造型效果的影響;對于透光造型的陰影重點需考慮簡化支撐骨架及掛點。
6、墻面大理石紋理雜亂
;◆通病現象

有強烈花紋紋理類的石材紋理明顯對接不上
整個墻面雜亂無章
◆原因分析
1、項目部跟石材廠交底不到位;
2、項目部未進行后場加工的密切跟蹤;
3、加工廠商排版質量意識淡薄;
4、工人安裝意識薄弱,沒有按照排版序號施工;

◆預防措施
1、首先應該整體排版,把排版的大理石編號。
2、大理石廠應根據編號排版切割(公司應設駐場人員督促)。
3、切好的大理石嚴格根據排版的編號,送至項目上,工人再嚴格按照編號進行安裝。
7、拉槽石材收口現黑縫
◆通病現象

石材拉槽板與不銹鋼及其它相關材料收口時縫隙大,
或者是存在其它材料壓拉槽板導致收口有空洞現象
◆原因分析
1、拉槽板下單尺寸不精確;
2、現場工人施工安裝不到位,未切割好;

◆預防措施
1、下單時管理人員要進行現場復核,先進行精準放線,然后根據現場實際尺寸對石材進行準確再下單,做到下單尺寸精準化。
2、不銹鋼加工時長度可以適當的加長,在現場切角,避免石材施工時預留空格不方正造成不銹鋼長度短缺。
3、在深化時收口處留工藝槽,拉槽板收口處做成平面,尺寸要統一。不銹鋼收邊要高于石材2-3毫米,確保收口完美。
8、石材消防門不規范
◆通病現象

石材消防栓門處做法不規范
◆原因分析
1、拉槽板下單尺寸不精確;
2、現場工人施工安裝不到位,未切割好。

◆預防措施
1、石材門扇處做法必須經行策劃。對于轉軸、拉手、定位器、鋼架做法,石材門扇斜口、門扇打開角度,門扇反面做法等方面均需考慮到位。門扇安裝要牢固,開啟方便,打開后內部一般不要見到鋼架、輕鋼龍骨或其它基層。
2、如門扇落地,地面石材需鋪進門內。如覺得門扇底口縫隙較大,可將消防栓門底部抬高100mm左右(高度可根據現場墻面石材排版而定)。
3、門扇反面可用白鐵皮、鋁塑板或其它飾面處理,以不見基層為基本要求。
4、注意消防栓門的打開角度,須保證消防栓的正常使用。
9、石材踏步反光燈槽
◆通病現象

原設計踏步反光槽下口未考慮LED的反光,
導致地面出現一條清晰的反射燈珠,
影響整體美觀效果
◆原因分析
在前期施工過程中未考慮地面石材的鏡面反射,導致LED安裝后地面燈珠反射明顯。

◆預防措施
在踏步反光燈槽下口加一塊亞克力遮光板,注意亞克力的厚度及透光度。

在踏步反光燈槽側板石材擋板底口加一條3CM的石材背條,將LED燈帶固定順直在背條上,有效預防LED在地面上的反光。

10、旋轉樓梯石材踏步開裂
◆通病現象

踏步石材開裂,出現裂紋
◆原因分析
1、石材直接鋪貼在鋼板上,樓梯正常使用時,石材面受力不均易使鋼樓梯產生振動變形,導致石材出現裂紋。
2、因鋼板厚度、支撐點和間距的不同而產生不同的反彈力,反彈力大于砂漿與鋼板之間的黏結力,導致石材出現裂紋。

◆預防措施
踏步背貼花崗巖,40*60方管基層,上下鑲嵌減震條。


來源:新筑時代
客服熱線:











